
关于印发《2025年抚州市实验学校、市第二实验学校和市曾巩学校免试就近入学工作实施方案》的通知
临川区教体局、高新区社会发展局,市实验学校、市第二实验学校、市曾巩学校,局属各单位:
《2025年抚州市实验学校、市第二实验学校和市曾巩学校免试就近入学工作实施方案》经市教育体育局研究,报市领导同意,现印发给你们,请认真贯彻执行。
抚州市教育体育局
2025年7月24日
2025年抚州市实验学校、市第二实验学校和市曾巩学校免试就近入学工作实施方案
为全面贯彻落实《中华人民共和国义务教育法》和《江西省义务教育条例》,严格执行《关于开展全省义务教育阳光招生专项行动(2025)的通知》(赣教基字〔2025〕8号)和《抚州市人民政府办公室关于进一步做好严禁市属公办学校非政策性择校工作的通知》(抚府办发〔2018〕60号)规定,结合我市实际,制定本方案。
一、指导思想
以习近平新时代中国特色社会主义思想为指导,全面落实教育部、省教育厅关于义务教育免试就近入学要求,积极回应群众关切,科学有序地做好抚州市实验学校、市第二实验学校和市曾巩学校免试就近入学工作,规范招生入学行为,促进教育公平,办好人民满意教育。
二、主要目标
抚州市实验学校、市第二实验学校和市曾巩学校免试就近入学坚持就近划片兼顾公平的原则,按照划定的学区范围,严格实行学区内免试就近入学招生办法,全面落实阳光招生政策,确保招生工作公开公平公正。
三、招生原则
(一)就近入学。凡符合就近入学条件的适龄儿童和小学应届毕业生,应当相对就近安排入学,完成义务教育。
(二)免试入学。不得采取任何形式的考试招录新生。严禁招收择校生。
(三)阳光招生。规范招生工作程序,坚持公开公平公正,全面实行阳光招生。
(四)免费入学。严格执行政策,不得收取任何形式与入学挂钩的费用。
四、招生对象
(一)小学一年级
学区内符合入学资格条件的当年满6周岁(2019年8月31日前出生)的适龄儿童。
(二)初中一年级
学区内符合入学资格条件的小学应届毕业生(不含市中心城区九年一贯制学校)。
五、招生办法
(一)学区范围
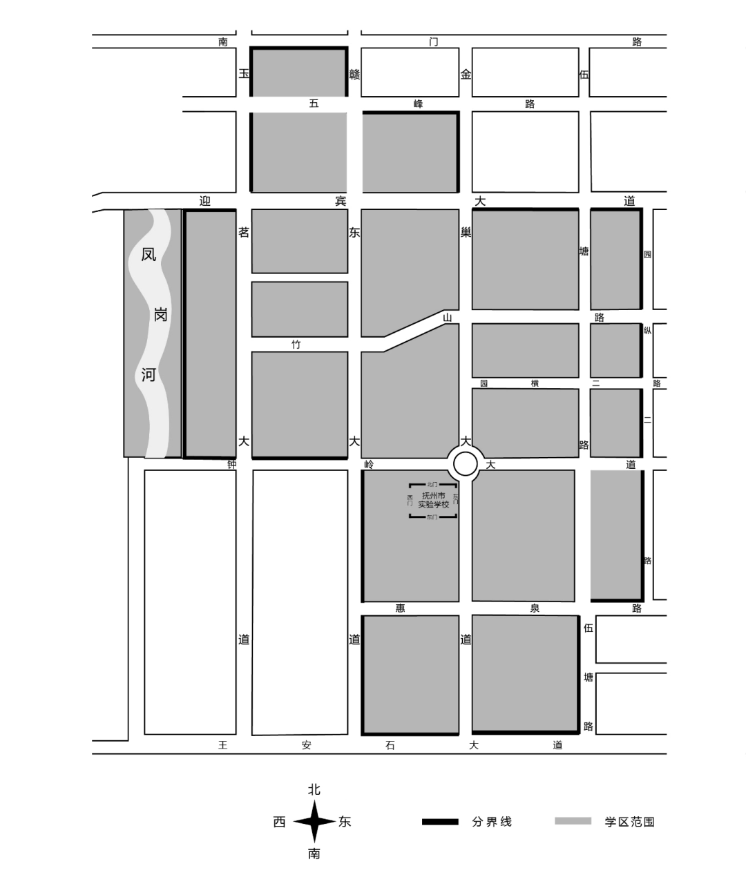
1.市实验学校(校址:钟岭大道与金巢大道交会处)
2025年抚州市实验学校就近入学招生学区示意图

东:王安石大道与伍塘路交会处至惠泉路与伍塘路交会处;惠泉路与园纵二路交会处至迎宾大道与园纵二路交会处;迎宾大道与金巢大道交会处至五峰路与金巢大道交会处;五峰路与赣东大道交会处至南门路与赣东大道交会处以西地段。
南:园纵二路与惠泉路交会处至伍塘路与惠泉路交会处; 伍塘路与王安石大道交会处至赣东大道与王安石大道交会处; 赣东大道与钟岭大道交会处至凤岗河与钟岭大道交会处以北地段。
西:王安石大道与赣东大道交会处至钟岭大道与赣东大道交会处;钟岭大道与凤岗河交会处至迎宾大道与凤岗河交会处;迎宾大道与玉茗大道交会处至南门路与玉茗大道交会处以东地段。
北:园纵二路与迎宾大道交会处至金巢大道与迎宾大道交会处;金巢大道与五峰路交会处至赣东大道与五峰路交会处;赣东大道与南门路交会处至玉茗大道与南门路交会处;玉茗大道与迎宾大道交会处至凤岗河与迎宾大道交会处(不含抚州高新区第二小学学区)以南地段。
以上各路段均只含范围区域街道内侧门牌。
2.市第二实验学校(校址:王安石大道以北、金柅大道以东)
2025年抚州市第二实验学校就近入学招生学区示意图

东:金巢大道与金凤路交会处至惠泉路与金凤路交会处。惠泉路与金柅大道(麻姑山大道)交会处至钟岭大道与金柅大道(麻姑山大道)交会处(仅本路段含东西两侧门牌)。
南:金凤路与金巢大道交会处至金柅大道(麻姑山大道)与金巢大道交会处;金柅大道(麻姑山大道)与仙溪路交会处至伍塘路(延伸段)与仙溪路交会处。
西:金巢大道与金柅大道(麻姑山大道)交会处至仙溪路与金柅大道(麻姑山大道)交会处;仙溪路与伍塘路(延伸段)交会处至惠泉路与伍塘路(延伸段)交会处;惠泉路与园纵二路交会处至钟岭大道与园纵二路交会处。
北:金凤路与惠泉路交会处至金柅大道(麻姑山大道)与惠泉路交会处;金柅大道(麻姑山大道)与钟岭大道交会处至园纵二路与钟岭大道交会处;园纵二路与惠泉路交会处至伍塘路(延伸段)与惠泉路交会处。
以上除东面第二路段外,其他各路段均只含范围区域街道内侧门牌。
3.市曾巩学校(校址:钟岭大道与陆象山大道交会处)
2025年市曾巩学校就近入学招生学区示意图

东:迎宾大道与陆象山大道交会处至陆象山大道与王安石大道交会处。
南:陆象山大道与王安石大道交会处至王安石大道与汤显祖大道交会处。
西:王安石大道与汤显祖大道交会处至汤显祖大道与迎宾大道交会处。
北:汤显祖大道与迎宾大道交会处至迎宾大道与陆象山大道交会处。
以上各路段均只含范围区域街道内侧门牌。
(二)入学条件
1.市实验学校入学条件
(1)小学一年级入学条件
①第一类:适龄儿童出生户籍申报起与法定监护人户籍(同一户口簿且法定监护人为户主)均在学区内,至报名时户籍无变化。认定材料:户口簿和适龄儿童居民身份证。
②第二类:适龄儿童与法定监护人户籍(同一户口簿)均在学区内,且法定监护人或适龄儿童在学区内购房(户籍迁入截至当年7月31日,不动产权证性质为住宅)。认定材料:户口簿、不动产权证或房产证(或经房管部门备案的购房合同、购房发票)、适龄儿童居民身份证。
③第三类:适龄儿童与法定监护人和祖父母(外祖父母)三代户籍(同一户口簿)均在学区内,适龄儿童、法定监护人在学区内未购房,但祖父母(外祖父母)在学区内购房(户籍迁入截至当年7月31日,不动产权证性质为住宅)。认定材料:户口簿、不动产权证或房产证(或经房管部门备案的购房合同、购房发票)、适龄儿童居民身份证。
(2)初中一年级入学条件
①第一类:市实验学校本校直升生即有本校电子学籍的小学应届毕业生。
②第二类:学生与法定监护人户籍(同一户口簿且法定监护人为户主)均在学区内连续满六年(从小学一年级入学当年8月31日起开始计算)且具有全国电子学籍(不含当年3月31日后转入)的市中心城区(不含市中心城区九年一贯制学校)小学应届毕业生。认定材料:户口簿。
③第三类:学生与法定监护人户籍(同一户口簿)均在学区内,且法定监护人或学生在学区内购房(户籍迁入截至当年7月31日,不动产权证性质为住宅),且具有全国电子学籍(不含市中心城区九年一贯制学校)小学应届毕业生。认定材料:户口簿、不动产权证或房产证(或经房管部门备案的购房合同、购房发票)。
2.市第二实验学校入学条件
(1)小学一年级入学条件
①第一类:适龄儿童与法定监护人户籍(同一户口簿)均在学区内,且法定监护人或适龄儿童在学区内购房(户籍迁入截至当年7月31日,不动产权证性质为住宅)。认定材料:户口簿、不动产权证或房产证(或经房管部门备案的购房合同、购房发票)、适龄儿童居民身份证。
②第二类:适龄儿童与法定监护人和祖父母(外祖父母)三代户籍(同一户口簿)均在学区内,适龄儿童、法定监护人在学区内未购房,但祖父母(外祖父母)在学区内购房(户籍迁入截至当年7月31日)。认定材料:户口簿、不动产权证或房产证(或经房管部门备案的购房合同、购房发票)、适龄儿童居民身份证。
(2)初中一年级入学条件
①第一类:市第二实验学校本校直升生即有本校电子学籍的小学应届毕业生。
②第二类:学生与法定监护人户籍(同一户口簿)均在学区内,且法定监护人或学生在学区内购房(户籍迁入截至当年7月31日,不动产权证性质为住宅),且具有全国电子学籍(不含市中心城区九年一贯制学校)小学应届毕业生。认定材料:户口簿、不动产权证或房产证(或经房管部门备案的购房合同、购房发票)。
3.市曾巩学校入学条件
(1)小学一年级入学条件
①第一类:适龄儿童与法定监护人户籍(同一户口簿)均在学区内,且法定监护人或适龄儿童在学区内购房(户籍迁入截至当年7月31日,不动产权证性质为住宅)。认定材料:户口簿、不动产权证或房产证(或经房管部门备案的购房合同、购房发票)、适龄儿童居民身份证。
②第二类:适龄儿童与法定监护人和祖父母(外祖父母)三代户籍(同一户口簿)均在学区内,适龄儿童、法定监护人在学区内未购房,但祖父母(外祖父母)在学区内购房(户籍迁入截至当年7月31日,不动产权证性质为住宅)。认定材料:户口簿、不动产权证或房产证(或经房管部门备案的购房合同、购房发票)、适龄儿童居民身份证。
(2)初中一年级入学条件
①第一类:市实验学校曾巩校区本校直升生即有本校电子学籍的小学应届毕业生。
②第二类:学生与法定监护人户籍(同一户口簿)均在学区内,且法定监护人或学生在学区内购房(户籍迁入截至当年7月31日,不动产权证性质为住宅),且具有全国电子学籍(不含市中心城区九年一贯制学校)小学应届毕业生。认定材料:户口簿、不动产权证或房产证(或经房管部门备案的购房合同、购房发票)。
根据《抚州市人民政府办公室关于进一步做好严禁市属公办学校非政策性择校工作的通知》(抚府办发〔2018〕60号)文件要求,抚州市实验学校、市第二实验学校和市曾巩学校义务教育免试就近入学对适龄儿童、青少年入学登记地址实施记录。入学登记的实际居住房屋不动产权证书(权证性质为住宅)为2018年8月31日后取得的,原则上三年内只提供一个家庭适龄儿童、少年入学学位。
相关优待对象仍按原有政策执行。
(三)实施时间步骤
1.信息采集
市实验学校、市第二实验学校和市曾巩学校报名信息采集时间:8月1日8:30一8月3日17:30。
符合市实验学校、市第二实验学校和市曾巩学校小学一年级和初中一年级入学条件的适龄儿童和小学应届毕业生,可通过登录“赣服通”APP网上报名登记或持相关证明材料原件及复印件到对应学校进行报名登记。
符合市实验学校一年级和初一年级入学条件且自愿选择到市曾巩学校的适龄儿童和小学应届毕业生,可通过登录“赣服通”APP网上报名登记或持相关证明材料原件及复印件到市实验学校进行报名登记。登记时间为:8月1日一8月3日。
2资格审核。8月15日前,由学校对相关证明材料进行初审,将就近入学报名登记表随同相关证明材料报市教育体育局审核。
3.名单公示。8月22日前,经市教育体育局审核后,在市教育体育局官网公示免试就近入学拟录名单,接受社会监督。公示期间如有异议,由市实验学校、市第二实验学校和市曾巩学校汇总学生户籍、房产等相关证明材料,再报市教育体育局复核确定。
4.办理录取。按照公示无异议的免试就近入学名单,由市教育体育局统一办理新生录取手续。
5.统筹入学。对未在规定时间内报名的适龄儿童和小学应届毕业生,由市教育体育局统筹协调临川区、高新区安排到其他学校免试入学。
六、工作要求
(一)广泛宣传。把握正确的舆论导向,采取多种形式广泛宣传招生方案,深入解读有关政策,积极回应群众关切,消除社会疑虑,确保招生工作平稳进行。
(二)精心部署。市、区有关部门和学校要根据方案要求,各负其责,认真审核学生资格,规范操作程序,全面实行阳光招生,确保招生工作公开公平公正。
(三)加强监督。加强对招生工作的过程监督,坚决查处违规招生行为,严肃追究相关人员责任。
(四)严肃纪律。学校要严格执行招生计划和招生纪律,不得违规招生,不得接纳未经市教育体育局正式录取的学生。严格按入学通知书接纳学生,凭录取花名册建立新生学籍。凡正式录取的新生一律不能放弃,如自行放弃,一律不能录取到其他学校(含民办学校)。
(五)上下联动。建立市区两级联动机制,落实责任,加强协调配合,形成工作合力。